Focar de șemineu pe lemne – Crystal 90 ECO Series – Geam panoramic 3 suprafețe vitrate, 17 KW, randament ≥70%, încorporabil, Garanție 5 ani.
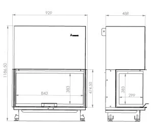
CRYSTAL 90 – ECO este un focar spectaculos cu trei laturi vitrate, a carui usa se deschide prin glisare verticala. Pentru curatare si inspectie se pot deschide cele doua usi laterale. Are un raport calitate/pret imbatabil, multumita parametrilor tehnici superiori. Doar latura principala masoara 85 cm, fiind printre cele mai mari focare disponibile in acest moment pe piata. Modelul CRYSTAL 90 – ECO a fost lansat anul acesta de catre compania A-CAMINETTI, fiind construit dupa cele mai stricte normative in vigoare. Focarul asigura un randament foarte bun, de peste 75%, este realizat din otel special si are interiorul captusit cu vermiculita.
Randament: minim 75%
Diametru evacuare fum: Ø200 mm
Aport oxigen exterior: Ø150 mm
















Recenzii
There are no reviews yet